您好,歡迎進入沃安電氣官方網站!




立即撥打詢價電話 156-6576-2235
不銹鋼儀表保溫箱適應于各種儀表的現場保溫或保護。可適應各種儀表的就地安裝。包括變送器、壓力、差壓、液位、溫度變送器等。
其中沃安生產的保溫箱所采用的發熱元件為自限溫電伴熱帶、電加熱器、蒸汽盤管伴熱,具有箱內加熱均勻、表面不會出現過熱現象,安裝快捷、維修簡單、使用壽命長等特點;可廣泛用于電廠、石油、化工、冶金、輕紡、國防等工業系統的儀表保護。

高×寬×深(mm)
YXW-600×500×400
YXW-600×500×500
YXW-800×600×600
YXW-800×600×600
YXW-1200×1000×600
YXW-1800×600×600
YXW-1800×1000×600
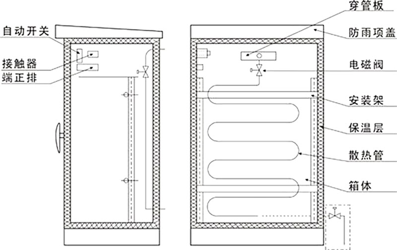
1.箱體用304不銹鋼板焊接制造。箱門用高質量的密封條密封,能防雨防塵。箱體為防濺密封型,可按用戶要求達到IP54-IP65的防護級別。
2.箱體內六面為阻燃型保溫層,該材料具有導熱系數小,容量小、阻燃、無毒、防水性好和耐腐蝕等優點。表面用鍍鋅板做保護層。沃安生產的保溫箱箱體的保溫結構具有施工簡捷、耐用和保溫性好的特點。
3.變送器安裝在箱體內可自由調整高度立式(水平)不銹鋼管架上。左、右、上、下坐標為可借助箱體立柱角鋼上長形孔調整,操作方便。
4.引入箱內的導壓管可從箱后側安裝孔穿入,然后用穿管板密封,穿管板上未用之敲落孔,用密封膠泥密封。
5.箱內頂有照明燈(可選),有行程開關控制,門開燈亮,門閉燈滅,檢修十分方便。
6.箱內有LED數顯表(可選),顯示箱內的溫度,便于操作員檢修箱內保溫情況。
7.電纜可從箱底或側面引入,電纜接頭規格按要求定制。
8.保溫箱內側有電器部件安裝用的導軌,供入箱電纜聯接繼電器、開關等固定用。
9.箱體外表面顏色為304不銹鋼原色。
10.沃安生產的保溫箱內加熱元件采用防爆型柔性加熱帶,配套使用防爆型接線盒等附件,從而構成整體防爆,可以應用于工廠一區、二區等防爆場合。
額定電壓:220V/380V
額定頻率:50HZ
工作環境溫度:-25~55℃
相對濕度:5~95%
最大工作電流:25A
絕緣電阻:﹥20MΩ
防護等級:IP54-IP65

儀表保溫箱應垂直安裝,箱子地腳與腳螺栓連接或焊接,可根據現場情況由用戶自定。
沃安技術人員安裝變送器時,先拆下箱子后壁的導壓管進箱板(也可按照用戶要求側壁進箱),然后根據導壓管的數量打孔,穿入密封圈和導壓管后重新裝好穿管板。
在電伴熱帶投入使用時,首先將配電箱電源開關合上,然后逐個電路依次供電,操作應隨時測定各路的電流值,并作送電記錄。